公室装修设计图审报备17317281639(微信同号)美丽的新疆大家来建设库尔勒办公室装修设计图审报备
一、设计概光:
1.本项目为:XXXX库尔勒办公室装修项目
2.建设单位:XXXX有限公司装修面积:626.08m2使用质:教育培训(14岁以上)
3.设计范围:本次设计范围为非阴影填充区域(阴影填充区域不在设计范围)的下列部分:
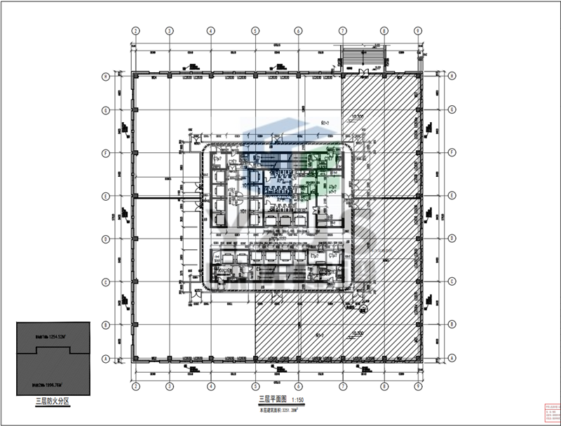
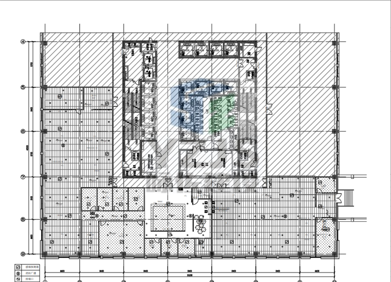
天花布置、地面布置、墙体布置、火灾自动报警系统、自动喷水灭火系统、应急照明疏散指示系统消火栓系统、防排烟系统等,核心简部分不在本次范围内,不更改原有系统设计,不更改防火分区,仅对末端点位进行移位改造。
原建筑概况:
1)总建筑面积:41800m2 建筑层数:4层
2)建筑高度:21m 结构类型:框架结构 耐火等级:一级
3原有消防设施:喷淋、消火栓、火火自动报警系统
现装修不改变原有结构、建筑外立面、防火分区、疏散形式、使用性质及消防系统;

美丽的新疆大家来建设库尔勒办公室装修设计图审报备三层装修平面布局图

美丽的新疆大家来建设库尔勒办公室装修设计图审报备

美丽的新疆大家来建设库尔勒办公室装修设计图审报备

咏佐建设:专注建筑装饰,装修设计、施工,工程项目代建代办咨询服务;旗下资质:建筑 规划 消防 装修 照明 强弱电 电力 道路 桥梁 幕墙 钢结构 园林市政 绿化 电子智能化 机电 环保 防水腐保温隔热 等工程设计施工资质;◇监理服务。
服务中小企业:致力于让天下没有难做的工程。让天下没有难做的设计。本公司汇集数百名工程技术人员。数十位高级专家,建筑、结构、幕墙、电力、给排水、装饰、机电、自动化、暖通、造价、建筑装饰装修专业人才门类齐全,实力雄厚,10000+服务过的客户见证。遍布全国数百家分公司的布局,更好的服务社会各界!
服务热线:021-3389 7758 ;17317281639(微信同号)

