节能设计(电气)部分,公司严格遵循GB 20055 - 2019、GB 35450 - 2019等标准,聚焦LED光源应用 。以精准参数把控,
从光效、显色指数到色温,适配不同场景需求。应急照明灯具明确功率、电压等,借节能光源降能耗,践行绿色理念,为建筑
运营省成本,紧跟低碳趋势,展现东方易筑旗下上海建筑公司对绿色建筑的深度践行。
火灾自动报警及消防联动控制系统图,构建建筑“安全神经中枢”。东方易筑旗下上海建筑公司以专业设计,让探测器、报警
装置、联动设备通过清晰线路连接,火灾隐患可第一时间捕捉、响应。险情发生时,快速触发报警、启动消防设施,为人员
疏散和火情控制争分夺秒,是建筑安全防护核心防线,彰显对生命与财产安全的严谨守护。
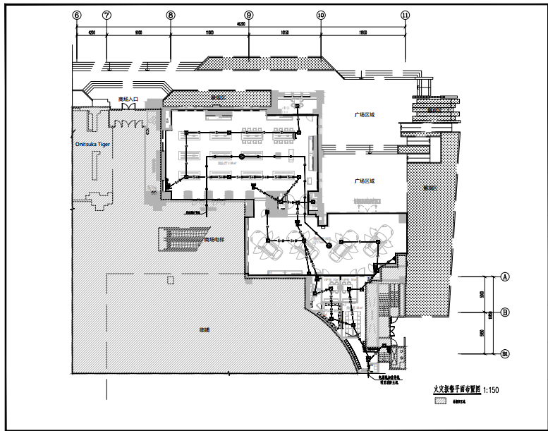
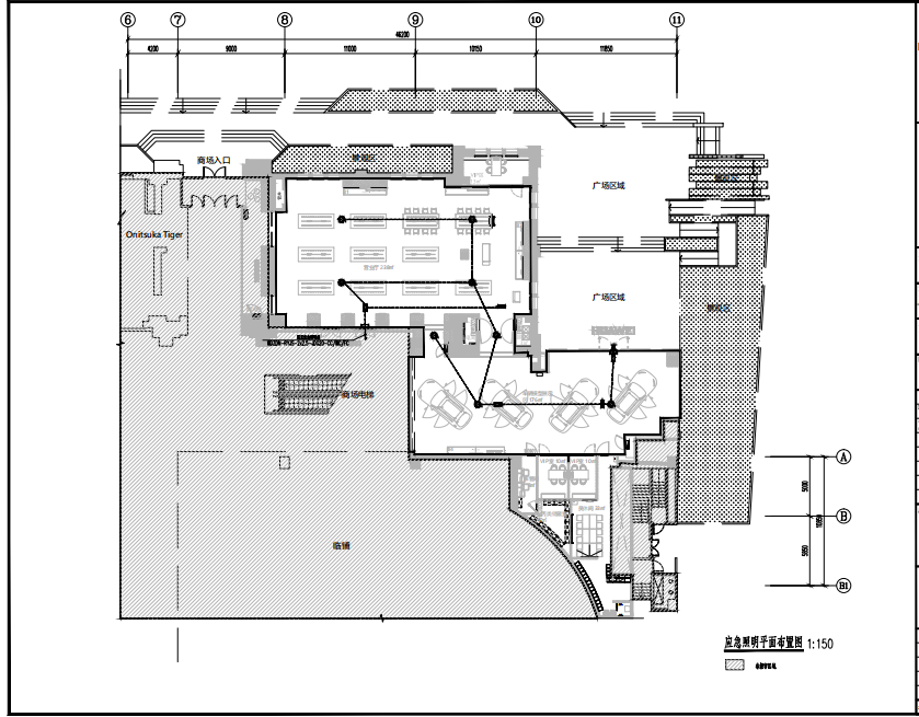
火灾报警平面布置图与应急照明平面布置图,是安全设计的“空间落地方略”。前者精准规划探测器、报警设备点位,让火灾
监测无死角;后者合理布局应急照明,保障紧急时疏散通道明亮。东方易筑旗下上海建筑公司将电气安全从理论转化为空间守
护网,用专业布局护人员安全。



这些图纸,是东方易筑旗下上海建筑公司技术实力的缩影:以标准为尺,控节能与性能;以安全为魂,筑消防防线;
以空间为纸,精准布局赋功能。公司懂标准、重安全、精布局,为建筑打造可靠电气系统,让建筑从“钢筋水泥”,
变为有“智慧神经”“安全铠甲”的生命体,交付符合规范、具人文关怀的工程,以专业电气设计赋能建筑,彰显东方
易筑旗下上海建筑公司的价值与底气,为客户铸就精品,让建筑更安全、更高效、更绿色。
东方易筑是集建筑装饰工程设计、施工、监理及全过程服务于一体的综合服务商,专注为中小企业提供高效解决方案
,致力于让工程设计与工程实施更便捷。公司拥有消防、建筑、市政、电力等50余项专业资质,覆盖工程设计、施工、
监理、规划、勘探全领域,服务范围延伸至古建修复、城乡规划、环境治理等细分板块。
团队汇聚数百名工程技术人员及数十位高级专家,涵盖建筑、结构、机电、暖通、造价等全领域专业人才,形成专业化、
年轻化的技术中坚力量。旗下公司累计获发明专利、实用新型专利及软著数十项,获评高新技术企业,为项目全周期管理
提供技术保障。凭借30000+客户服务经验与全国数百家分支机构的布局,构建起高效服务网络,持续为市政工程、工业
建筑、商业空间等多领域提供标准化与定制化相结合的综合服务。
服务热线:021-3389 7758 ;17316381639(微信同号);1317870538(QQ及邮箱)
服务内容:
建筑,装饰,装修,设计,施工..资质齐全
工程项目代建代办
立项 工程项目立项
图审 一网通办图审计
施工许可证
消防报备
竣工验收
资质代办
项目配合
代建代力分公司加盟

