餐饮店铺装修项目
一、设计概况:
1、本项目为:餐饮店铺装修项目
地址:上海市虹呕东大名路999号上海北外滩来福士广场-商场三层09室
2、建设单位:上海春桃餐饮管理有限公司
建筑面积:362m2
使用性质:餐饮
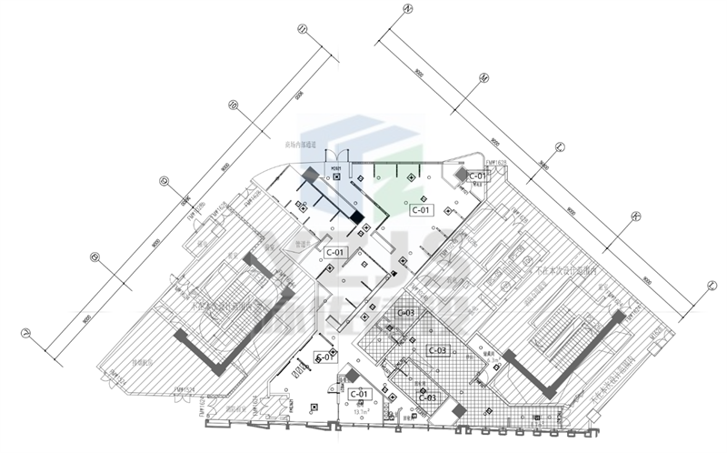
3、设计范围:本次设计范围为地上三层非阴影填充区域(阴影填充区城不在设计范围)的下列部分:
平面布置、天花布置、地面布置、墙体布置、火灾自动报警系统、自动喷水灭火系统、应急照明疏散指示系统、消火栓系统、防排烟系统等,不更改原有系统设计,不更政防火分区,仅对末端点位进行移位改造。
总建筑面积约416561.48平方米,其中地上约224924.48平方米,地下约191637平方米,地上两座50层的高层塔楼,以及连接塔楼的四层商业裙房,地下室共6层。面积约191637平方米,其中B2层至4层为商场。B3层至B6层为机动车库。塔楼建筑高度:263米,裙房建筑高度:24米。本项目位于商场3层,属于一类高层建筑。
耐火等级:一级,主要结构类型为:钢混结构。抗震设防烈度为7度。
二、设计依据:
1.《建筑设计防火规范》 GB50016-2014(2018版)
2.《建筑内部装修设计防火规范》 GB50222-2017
3.《建筑内部装修防火施工及验收规范》 GB50354-2005
4.《建筑装饰装修工程质量验收标准》 GB50210-2018
5.《建筑防烟排烟系统技术标准》 GB51251-2017
6.《民用建筑工程室内环境污染控制标准》 GB50325-2020
MM建乳吸璃匝用我禾规霍厂 0GY13~20BY
8.《饮食建筑设计标准》 JGJ 64-2017
三、防火设计:
原建筑图纸已报且已通过消防送审,本次设计未改变原有建筑功能、安全疏散及原有消防系统(火灾自动报警系统、自动喷淋 系统、消火栓系统和防排烟系统),部分消防设备点位根据装修造型微调。装修材料依据《建筑内部装修设计防火规范》(G B50222-2017)。在装修施工过程中必须严格执行防火规范的各项条例,具体装修材料的燃烧性能详见材料表。
1、防火分区 该项目位于一类高层建筑的地上三层,设置自动喷水灭火系统保护,防火分区最大不超过3000平方米,本次装修范围均在原 防火分区的基础上进行,不敢变原建筑肪火分区。
2、平面布置
1)本项目所在层防火分区小于3000m2,采用楼板、防火墙划分防火分区。
2)配电室、储藏间部分采用2h防火隔墙与其余区域分隔,墙上的门均采用甲级防火门。
3)所有的疏散门净宽均不小于0.9m,人员密集的公共场所、观众厅的疏散门不应设置门槛,其净宽度不应小于1.40m, 且紧章门口内外各1.40m范围内不应设置路步。
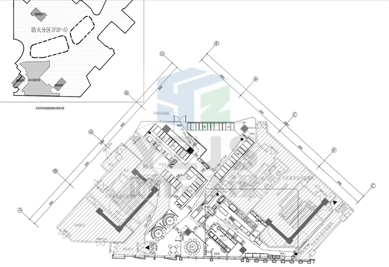
3、安全疏散
3.1疏散距离
1)本项目为-级耐火等级中一类高层建筑中的商业建筑,依据《建筑设计防火规苑》GB50016-2014(2018版)中
5.5.17的规定,本项目设有自动喷水天火系统保护,安全疏散距高可以增加25%。
顿目为安全出少于2个的餐饮场所。其室内任一点至最近疏散门或安全出口的直线距离不大于30m,本项目设置喷淋系统保 护,其疏散距高小于30x1.25=37.5m,详见疏散距高图。



咏佐建设:专注建筑装饰,装修设计、施工,工程项目代建代办咨询服务;旗下资质:建筑 规划 消防 装修 照明 强弱电 电力 道路 桥梁 幕墙 钢结构 园林市政 绿化 电子智能化 机电 环保 防水腐保温隔热 等工程设计施工资质;◇监理服务。
服务中小企业:致力于让天下没有难做的工程。让天下没有难做的设计。本公司汇集数百名工程技术人员。数十位高级专家,建筑、结构、幕墙、电力、给排水、装饰、机电、自动化、暖通、造价、建筑装饰装修专业人才门类齐全,实力雄厚,10000+服务过的客户见证。遍布全国数百家分公司的布局,更好的服务社会各界!
服务热线:021-3389 7758 ;15505051172 15901992096(微信同号)

