xxxx医疗器材制造有限公司
一、工程概况:
1、工程名称:B2区域车间局部装饰装修工程项目
2、工程地址:xxxx浦星公路
3、工程规模:地上共计5层,建筑高度22.975m(室外设计地面至屋面面层),属于多层厂房;竣工时间为2006
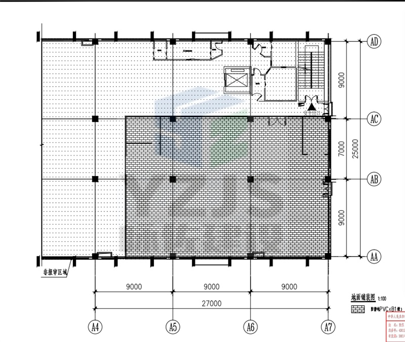
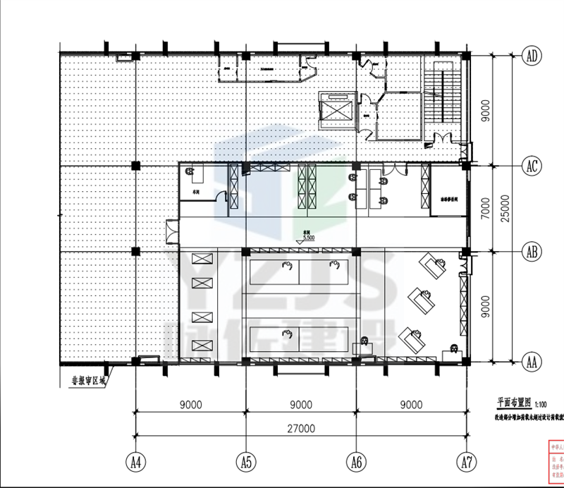
年:建筑面积为18725.55平方米本次装修改造位于建筑2层层高4.2m,装修面积390.00平方米
4、建筑性质:本工程为多层丙类厂房,建筑结构形式为框架结构,耐火等级为二级。
5、本次将原有建筑2层进行内部装修改造,未改变原有建筑的主体结构、外围护墙,
未改变原设计防火分区、消防疏散流线及安全出口布置,疏散沿用原安全出口;本次改造不包括外墙、外窗的节能保温改造设计;本工程未改变原有建筑性质,未改造区域已打阴影。
二、设计依据:
1、《建筑设计防火规范》GB50016-2014(2018年版)
2、《建筑灭火器配置设计规范》GB50140-2005
3、《自动喷水灭火系统设计规范》GB50084-2017
4、《火灾白动报警系统设计规范》GB50116-2013
5、《消防应急照明和疏散指示系统技术标准》GB51309-2018
6、《建筑内部装修防火施工及验收规范》GB50354-2005
7、《自动喷水灭火系统施工及验收规范》GB50261-2017
8、《电气装置安装工程施工及验收规范》GB50254-2014
9、《建筑装饰装修工程质量验收规范》GB50210-201810、《火灾自动报警系统施工及验收规范》GB50166-201911、《建筑内部装修设计防火规范》GB50222-201712、《建筑防烟排烟系统技术标准》GB51251-2017
四、建筑消防设计:
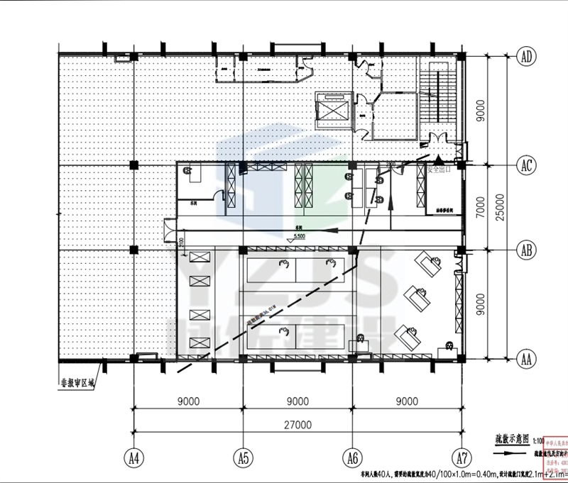
1、防火分区
1)本工程均设有自动灭火和自动报警系统。
2)装修区域在2层,装修区域建筑面积395.21m。
3)本层建筑防火分区见原土建防火分区示意图(建筑内设置自动灭火系统,防火分区最大允许面积增
加1.0倍),面积大小均符合防火规范要求,符合《建规》第3.3.3条规定。本项目经计算疏散宽度和疏散距离均满足规范要求。
2、防烟分区
1)防烟分区最大的建筑面积小于1000m,详见暖通图纸。采用隔墙或梁划分防烟分区。有吊顶处采用下垂的500高挡烟垂壁。挡烟垂壁做法参见12J7-3-82-5,12J7-3-84-1、2。
3、安全疏散
1)每个防火分区均有不少于两个安全出口。符合《建规》第3.7.2条规定。
2)两个安全出口及每个房间两个疏散门最近边缘水平距离大于5m,符合《建规》第3.7.1条。
4、疏散宽度
1)本工程内疏散门的净宽度≥0.9m,符合《建规》第3.7.5
2)疏散走道净宽度≥1.4m,符合《建规》第3.7.5条
2)保证有通畅的出口通向疏散楼梯。
5、疏散距离
1)房间内任一点至房间疏散门的直线距离不大于60米,符合《建规》3.7.4条的规定。
6、防火构造
1)本工程各设备管道穿越防火墙、防火隔墙及楼板处的孔洞,采用防火封堵材料封堵





咏佐建设:专注建筑装饰,装修设计、施工,工程项目代建代办咨询服务;旗下资质:建筑 规划 消防 装修 照明 强弱电 电力 道路 桥梁 幕墙 钢结构 园林市政 绿化 电子智能化 机电 环保 防水腐保温隔热 等工程设计施工资质;◇监理服务。
服务中小企业:致力于让天下没有难做的工程。让天下没有难做的设计。本公司汇集数百名工程技术人员。数十位高级专家,建筑、结构、幕墙、电力、给排水、装饰、机电、自动化、暖通、造价、建筑装饰装修专业人才门类齐全,实力雄厚,10000+服务过的客户见证。遍布全国数百家分公司的布局,更好的服务社会各界!
服务热线:021-3389 7758 ;17821258149(微信同号)

