湖山建筑结构房屋建筑设计CAD全套甲级设计资质
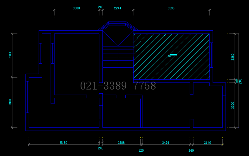
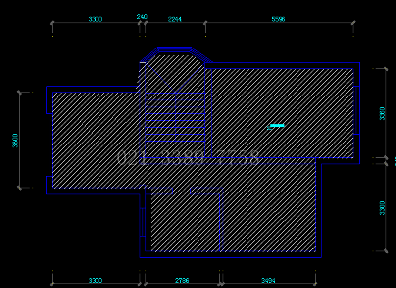
咏佐建设(021-3389 7758)此办公室位于中国杭州。建筑设计占地面积约800平方,建筑面积约:2000平方米。为钢筋混凝土框架结构。外观秀美、功能合理、结构紧凑。建筑结构房屋建筑设计楼梯设计梁板柱配筋建筑CAD全套设计资质甲级。






东方易筑TM:上海咏佐建筑装饰工程有限公司专注建筑装饰,装修设计、施工及咨询服务;旗下资质:建筑 规划 消防 装修 照明 强弱电 电力 道路 桥梁 幕墙 钢结构 园林市政 绿化 电子智能化 机电 环保 防水腐保温隔热 等工程;◇监理服务。
服务中小企业:致力于让天下没有难做的工程。让天下没有难做的设计。本公司汇集数百名工程技术人员。数十位高级专家,建筑、结构、幕墙、电力、给排水、装饰、机电、自动化、暖通、造价、建筑装饰装修专业人才门类齐全,实力雄厚,10000+服务过的客户见证。遍布全国数百家分公司的布局,更好的服务社会各界!
财富热线:021-3389 7758 ;17317381739(微信同号)1317870538(QQ)若要此套案例也请联系

