工业软件有限公司
一、工程概况:
1、工程名称:xxxxx软件有限公司办公室装饰工程
2、工程地址:xxxx郭守敬路
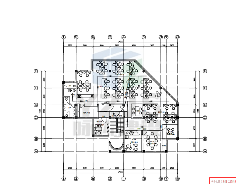
3、工程规模:3号楼地上共计4层;建筑高度为14.30米,属多层办公建筑;
总建筑面积为1141.82平方米,本次对3号楼1-3层进行装修改造,装修面积:1052.08平方米。
4、建筑性质:本工程为多层办公建筑,建筑结构形式为框架,耐火等级二级。
5、本次对5号楼整栋进行内部装修改造,未改变原有建筑的主体结
构、外围护墙,未改变原设计防火分区、消防疏散流线及安全出口布置,疏散沿用原安全出口:本次改造不包括外墙、外窗的节能保温改造设计;本工程未改变原有建筑使用性质,未改造区域已打阴影。
6原建筑竣工时间为2000年,本项目已取得xxxx分局出具的《建筑工程消防
验收意见书》([2000]沪浦公消(建验)字第134号)
二、设计依据:
1、《建筑设计防火规范》GB50016-2014(2018年版)
2、《建筑内部装修防火施工及验收规范》GB50354-2005
3、《建筑装饰装修工程质量验收标准》GB50210-2018
4、《建筑内部装修设计防火规范》GB 50222-2017
5、《建筑防烟排烟系统技术标准》GB51251-2017
6、《民用建筑设计统一标准》GB50352-2019
7、《办公建筑设计标准》JGT/T67-2019
五、建筑消防设计:
1、防火分区
1)本工程均设有自动灭火和自动报警系统。
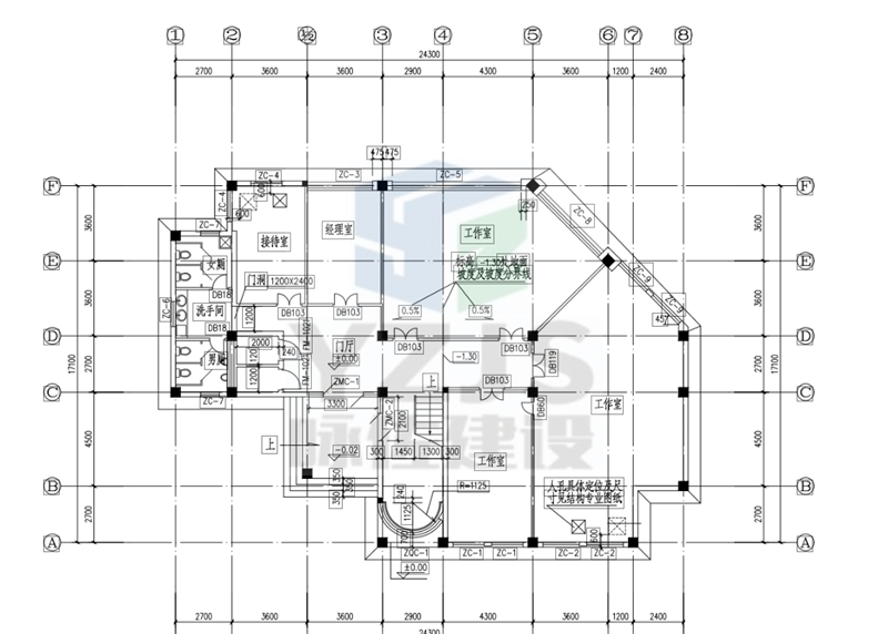
2)本次对5号楼1-3层进行装修改造,装修区域建筑面积1052.08m。
3)本栋总建筑面积为1142.82m<2500m整栋楼合为一个防火分区,符合《建筑设计防火规范》GB50016-2014(2018年版)第5.3.1条规定。
2、防烟分区
1)防烟分区最大的建筑面积小于500m,详见暖通图纸。采用隔墙或梁划分防烟分区。挡烟垂壁高度应满足GB51251-2017 4.6.2条要求。挡烟垂壁做法详见暖通图纸。
3、安全疏散
1)每个防火分区均有不少于两个安全出口。符合《建筑设计防火规范》第5.5.8条规定。
2)两个安全出口及每个房间两个疏散门最近边缘水平距离大于5m,符合《建筑设计防火规范》 GB50016-2014(2018年版)第5.5.2条。
3)地上房间大于120m和走道尽端大于200m时设两个疏散门,符合《建筑设计防火规范》 GB50016-2014(2018年版)第5.5.15条。
4、疏散宽度
1)本工程内疏散门的净宽度≥1.0m,符合《建筑设计防火规范》第5.5.18条及《办公建筑设计标准》第4.1.7条。
2)疏散走道(不超过40m双侧布房)净宽度≥1.5米,符合《建规》第5.5.18条及《办规》第4.1.9条规定。
2)保证有通畅的出口通向疏散楼梯。
5、疏散距离
1)位于两个安全出口之间的直通疏散走道的房间疏散门至最近安全出口的直线距离不应大于40米,符合《建筑设计防火规范》第5.5.17条规定。
2)位于袋形走道两侧或尺端的直通疏散走道的房间疏散门至最近安全出口的直线距离不应大于22米,符合《建筑设计防火规范》第5.5.17条规定。
3)房间内任一点至房间直通疏散走道的疏散门的直线距离不应大于22米,符合《建筑设计防火规范》5.5.17.3条的规定。
4、疏散宽度
1)本工程内疏散门的净宽度≥1.0m,符合《建筑设计防火规范》第5.5.18条及《办公建筑设计标准》第4.1.7条。
2)疏散走道(不超过40m双侧布房)净宽度≥1.5米,符合《建规》第5.5.18条及《办规》第4.1.9条规定。
2)保证有通畅的出口通向疏散楼梯。
5、疏散距离
1)位于两个安全出口之间的直通疏散走道的房间疏散门至最近安全出口的直线距离不应大于40米,符合《建筑设计防火规范》第5.5.17条规定。
2)位于袋形走道两侧或尽端的直通疏散走道的房间疏散门至最近安全出口的直线距离不应大于22米,符合《建筑设计防火规范》第5.5.17条规定。
3)房间内任一点至房间直通疏散走道的疏散门的直线距离不应大于22米,符合《建筑设计防火规范》5.5.17.3条的规定。
6、防火构造
1)本工程各设备管道穿越防火墙、防火隔墙及楼板处的孔洞,采用防火封堵材料封堵
7、消防标识
1)常闭防火门应在明显位置设置“保持防火门关闭”等提示标识,符合《建筑设计防火规范》6.5.1条第2款的规定。
2)建筑内部消火栓箱门不应被装饰物遮掩,消火栓箱门四周的装修材料颜色应与消火柱
箱门的颜色有明显区别或在消火栓箱门表面设置发光标志。



咏佐建设:专注建筑装饰,装修设计、施工,工程项目代建代办咨询服务;旗下资质:建筑 规划 消防 装修 照明 强弱电 电力 道路 桥梁 幕墙 钢结构 园林市政 绿化 电子智能化 机电 环保 防水腐保温隔热 等工程设计施工资质;◇监理服务。
服务中小企业:致力于让天下没有难做的工程。让天下没有难做的设计。本公司汇集数百名工程技术人员。数十位高级专家,建筑、结构、幕墙、电力、给排水、装饰、机电、自动化、暖通、造价、建筑装饰装修专业人才门类齐全,实力雄厚,10000+服务过的客户见证。遍布全国数百家分公司的布局,更好的服务社会各界!
服务热线:021-3389 7758 ;15505051172(微信同号)

