营养品有限公司
工程概况:
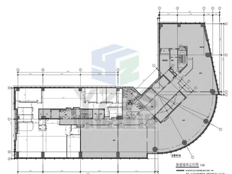
1、工程名称:xxxxx国际装修项目
2、工程地址:xxxx恒丰路
3、工程规模:地上共计25层建筑高度100.36m,属于一类高层办公建筑:建筑面积为
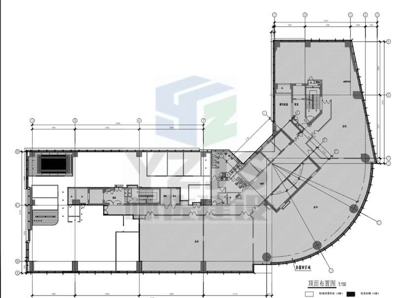
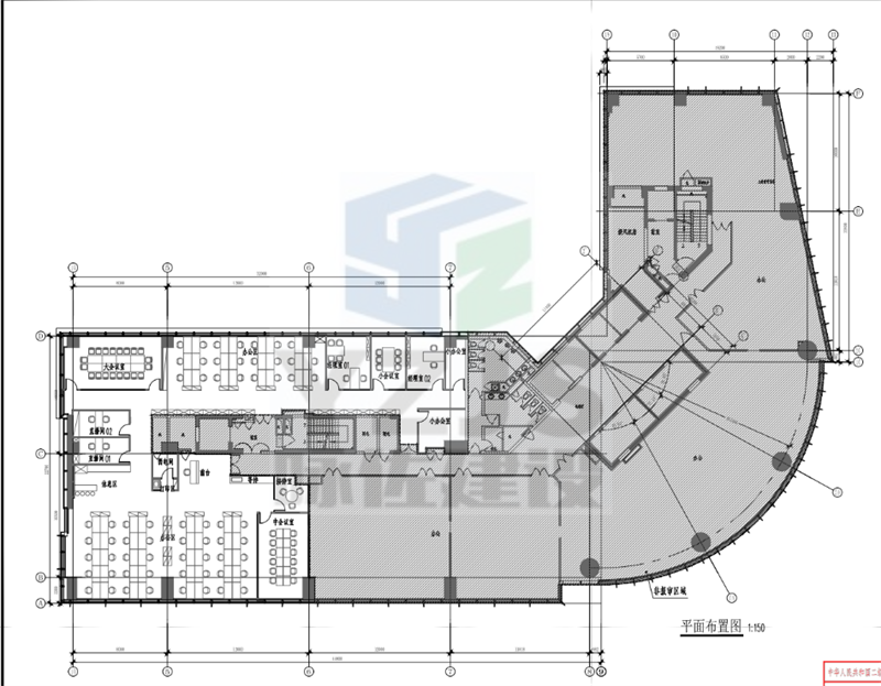
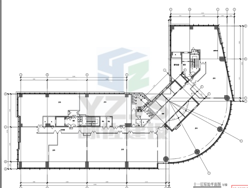
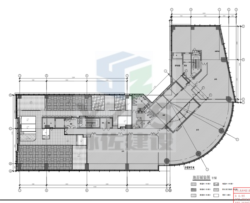
1741.55平方米,本次装修改造位于建筑11层装修面积:516.00平方米
4、建筑性质:本工程为一类高层办公建筑,建筑结构形式为钢混结构,耐火等级为一级。
5、本次将原有建筑11层局部区域进行内部装修改造,未改变原有建筑的主体结构、外用护
墙,未改变原设计防火分区、消防疏散流线及安全出口布置,疏散沿用原安全出口;本次改造不包括外墙、外窗的节能保温改造设计;本工程未改变原有建筑使用性质,未改造区域已打阴影。
二、设计依据:
1、《建筑设计防火规范》GB50016-2014(2018年版)
2、《建筑灭火器配置设计规范》GB 50140-2005
3、《自动喷水灭火系统设计规范》GB50084-2017
4、《火灾自动报警系统设计规范》GB50116-2013
5、《消防应急照明和疏散指示系统》GB17945-2010
6、《建筑内部装修防火施工及验收规范》GB50354-2005
7、《自动喷水灭火系统施工及验收规范》GB50261-2005
8、《电气装置安装工程施工及验收规范》GB50259-96
9、《建筑装饰装修工程质量验收规范》GB50210-200110、《火灾自动报警系统施工及验收规范》GB50166-200711、《建筑内部装修设计防火规范》GB50222-201712、《建筑防烟排烟系统技术标准》GB51251-201713、《民用建筑设计统一标准》GB50352-201914、《办公建筑设计标准》JGJ/T67-2019
五、建筑消防设计:
1、防火分区
1)本工程均设有自动灭火和自动报警系统。
2)装修区域在11层1/4~7轴交A~D轴局部区域,装修区域建筑面积516.00㎡。
3)本层建筑防火分区见原土建防火分区示意图(建筑内设置自动灭火系统,防火分区最大允许面积增加1.0倍),面积大小均符合防火规范要求,符合《建规》第5.3.1条规定。
根据注表3建筑物内设置自动喷水灭火系统时,其安全疏散距离可按本表规定增加25%,本项目经计算疏散宽度和疏散距离均满足规范要求。
2、防烟分区
1)防烟分区最大的建筑面积小于500m,详见暖通图纸。采用隔墙或梁划分防烟分区。有吊顶处采用下垂的500高挡烟垂壁。挡烟垂壁做法参见12J7-3-82-5,12J7-3-84-1、2。
3、安全疏散
1)每个防火分区均有不少于两个安全出口。符合《建规》第5.5.8条规定。
2)两个安全出口及每个房间两个疏散门最近边缘水平距离大于5m,符合《建规)第5.5.2条。
3)地上房间大于120m和走道尽端大于50m时设两个疏散门,符合《建规》第5.5.15条。
4、疏散宽度
1)本工程内疏散门的净宽度≥0.9m,符合《建规》第5.5.18条
2)疏散走道(不超过40m双侧布房)净宽度≥1.5米,符合《建规》第5.5.18条2)保证有通畅的出口通向疏散楼梯。
5、疏散距离
1)位于两个安全出口之间的直通疏散走道的房间疏散门至最近安全出口的直线距离不应大于50米(40x1.25),符合《建规》第5.5.17条规定。
2)位于袋形走道两侧或尽端的直通疏散走道的房间疏散门至最近安全出口的直线距离不应大于27.5米(22x1.25),符合《建规》第5.5.17条规定。
3)房间内任一点至房间疏散门的直线距离不大于27.5米(22x1.25),符合《建规》5.5.17.3条的规定。
6、防火构造
1)本工程各设备管道穿越防火墙、防火隔墙及楼板处的孔洞,采用防火封堵材料封堵
7、消防标识
1)常闭防火门应在明显位置设置“保持防火门关闭”等提示标识,符合《建规》6.5.1条第2款的规定。





咏佐建设:专注建筑装饰,装修设计、施工,工程项目代建代办咨询服务;旗下资质:建筑 规划 消防 装修 照明 强弱电 电力 道路 桥梁 幕墙 钢结构 园林市政 绿化 电子智能化 机电 环保 防水腐保温隔热 等工程设计施工资质;◇监理服务。
服务中小企业:致力于让天下没有难做的工程。让天下没有难做的设计。本公司汇集数百名工程技术人员。数十位高级专家,建筑、结构、幕墙、电力、给排水、装饰、机电、自动化、暖通、造价、建筑装饰装修专业人才门类齐全,实力雄厚,10000+服务过的客户见证。遍布全国数百家分公司的布局,更好的服务社会各界!
服务热线:021-3389 7758 ;15505051172(微信同号)

