财务咨询有限公司
1、手动报警按钮(带电话插孔)挂墙明装,下沿离地1.5米。
2、声光讯响器挂墙明装下沿离地2.3米:
3、区域显示器应设置在出入口等明显和便于操作的部位。当采用壁装方式时,其底边距地高度宜为1.3~1.5m。
4、声光讯响器、消防广播控制模块,短路隔离器安装在接线端子箱内或附近,其余模块安装在其设备附近;
5、每个报警区域内的模块宜相对集中设置在本报警区域内的金属模块箱中。模块严禁设置在配电(控制)柜(箱)内。本报警区域内的模块不应控制其他报警区域的
设备未集中设置的模块附近应有尺寸不小于100mmx100mm的标识。
6、系统总线上应设置总线短路隔离器,每只总线短路隔离器保护的火灾探测器、手动火灾报警按钮和模块等消防设备的总数不应超过32点,总线穿越防火分区时,应
在穿越处设置总线短路隔离器:
7、消防广播和消防电话线应单独穿管所有管线均穿厚壁镀锌钢管(30mm)暗敷:
C原有联动要求:
确认火灾发生时启动建筑内所有声光讯响器、消防广播:
确认火灾发生时由发生火灾的报警区域开始,顺序启动全楼疏散通道的消防应急照明和疏散指示系统。
确认火灾发生时,或消火栓按钮动作时,启动消火栓泵:能将启泵按钮位置报至消防控制室;
确认火灾发生时且压力开关动作时启动喷淋水泵并反馈信号确认火灾发生时排烟系统启动,并反馈信号
七、应急照明及疏散指示:
利用原有建筑提供电源供电,走道、大厅设置应急照明,采用220V电源供电,公共区火灾时消防联动切断非消防电源,应急照明迅速点亮。公共走道、出入口等场所设置疏散指示(其连续供电时间不小干30分钟),采用220V电源供电,光源为LED寿命长的节能灯。应急照明转换时间不大干5秒:应急照明采用镍镉电池做备用电源,应急持续时间不应小于30分钟。应急照明灯和疏散照明灯采用消防认可的成套设备,疏散照明灯应设玻璃或其它不燃烧材料制作的保护罩,应急照明等消防设施的配电电线采
用WDZCN-BYJ-450/750V型交联聚乙烯绝缘无卤低烟阻燃耐火电线,穿钢管暗敷
在不燃烧体结构内且保护层厚度不应小于30mm:在桥架内敷设时,消防用申
设备的主备供电线路之间需耐火隔板隔开且与其他非消防线路再用耐火隔板隔开,采用两道耐火隔板,
4.自动喷水系统管道安装、试压等注意事项参见标准图04S206总说明89S175P65.为防止喷头喷水时管道沿管线方向晃动配水干管及配水支管应设防晃支架详见做法标准图无吊顶处选用玻璃球式直立型喷头有吊顶处选用玻璃球式下垂型喷头,吊顶下喷头加装饰盘并紧贴吊顶向下安装:净空高度大于800mm的闷顶和技术夹层内有可燃物时应设置喷头,当梁、通风管道、成排布置的管道、桥架等障碍物的宽度大于1.2m时其下方应增设喷头。增设喷头的上方如有缝隙时应设集热板。喷头公称动作温度为68℃。最不利点喷头供水压力为005Mpa,喷头安装参见标准图04S206,喷头数应者虑不少于1%备用,并不少于10个。
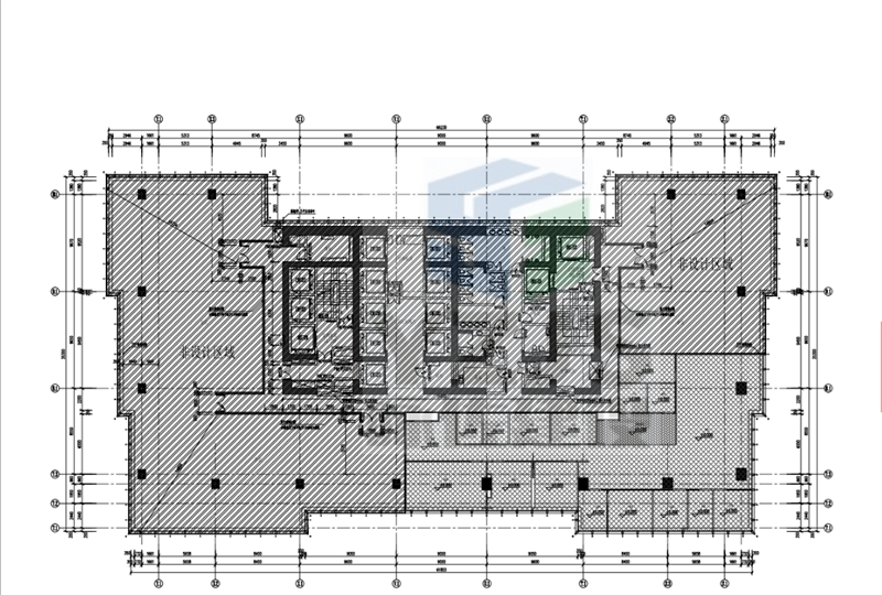
十、消火栓系统
本装修为改造项目,消火栓系统利用原有系统。
本次设计仅对由于平面布局调整造成的不满足规范之处做移位,消火栓的布置保证两支水枪能喷射到室内任何位置,本工程消火栓均配备消防软管卷盘,消火栓箱型号: SN65,配备水枪QZ19,DN65衬胶水带长25m,栓口安装高度距相对楼面1.1m消火栓安装参国标04S202-21丙型(尺寸1800x700x240)。
室内消火栓管线采用内外热镀锌钢管,管道接口:当管径>50mm,采用沟槽卡箱接口:当管径=<50mm,采用丝扣接口。
十一、按照《建筑灭火器配置设计规范》GB50140-2005场所使用为严重危险级,
每个消火栓内配置手拉式干粉灭火器MF/ABC52具,局部适当增补。
十二、消防排烟
1、建筑内建面积大于50平方米的内区无窗房间需设置消防排烟,本项目采用原有机械排烟系统。依据《建筑防烟排烟系统技术标准》GB51251-2017第4.2.4,建筑空间净高小于3米的场所,防烟分区的最大允许面积为500平方米,长边最大允许长度为24米。小于6米的空间,每个防烟分区排烟量按不小于60m3(h.m2)计算且不小
于15000m3/h,祥见排烟平面图。
2、排烟系统末端采用多叶常闭排烟口+防火阀的形式,常闭式排烟口就近在距地
1.5m且方便操作处设置手动开启按钮。
3、火灾时现场手动或消防联动开启着火点所在防火分区内相应及相邻防烟分区的常闭式排烟阀并连锁开启相应排烟风机。
4、排烟风机入口处设置280℃常开防火阀并连锁排烟风机。当排烟温度达到280℃时,排烟风机入口防火阀自动关闭并连锁关闭相应的排烟风机。




咏佐建设:专注建筑装饰,装修设计、施工,工程项目代建代办咨询服务;旗下资质:建筑 规划 消防 装修 照明 强弱电 电力 道路 桥梁 幕墙 钢结构 园林市政 绿化 电子智能化 机电 环保 防水腐保温隔热 等工程设计施工资质;◇监理服务。
服务中小企业:致力于让天下没有难做的工程。让天下没有难做的设计。本公司汇集数百名工程技术人员。数十位高级专家,建筑、结构、幕墙、电力、给排水、装饰、机电、自动化、暖通、造价、建筑装饰装修专业人才门类齐全,实力雄厚,10000+服务过的客户见证。遍布全国数百家分公司的布局,更好的服务社会各界!
服务热线:021-3389 7758 ;15505051172(微信同号)

