城店装饰工程
设计依据
1.1 国家有关法律法规和现行工程建设标准规范:
《中华人民共和国建筑法》
《建筑设计防火规范》GB50016-2014(2018年版)
:《建筑内部装修设计防火规范》GB 50222-2017:
《建筑内部装修防火施工及验收规范》GB 50354-2005
《金属与石材幕墙工程技术规范》JGJ133-2001;
《木结构工程施工质量验收规范》GB 50206-2002
《钢结构工程施工质量验收规范》GB 50205-2001
《民用建筑工程室内环境污染控制规范》GB 50325-2020
《房屋建筑制图统一标准》GB/T50001
《建筑制图标准》 GB/T50104
《民用建筑设计统一标准》GB50352-2019
《商店建筑设计规范》JGJ48-2014
《饮食建筑设计标准》JGJ64-2017
2 项目概况
2.1 工程名称:城店装饰工程
2.2 建设地点:万源路与闵虹路交叉)
2.3 建设单位:闵虹路分公司
2.4 工程概况及室内设计的主要范围和内容:
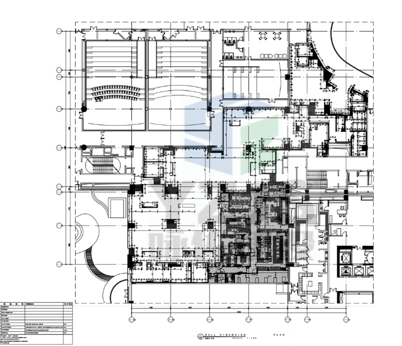
本建筑物地上5层,地下3层,建筑高度36m,地上建筑面积71488.70m,为一类高层公共建筑,使用性质为商场,建筑耐火等级应为一级海底捞租区位于5层。
2.4.1 工程建筑面积:红线面积1503m,租区旁公共位置面积108m;
2.4.2 结构类型:框架结构:
2.4.3工程原始情况:原建筑为新建毛坯房:
2.4.4 设计范围:室内六面体空间。
3
设计标高
31图中各空间地面装饰标高均以原建筑地面为士0.000,图上所注标高均以士0.000
标高为基准;图中所标注尺寸为完成面地面尺寸。
3.2各层标注的标高均为以原建筑地面到吊顶完成面高度:
33本工程标高以mm为单位,其他尺寸以mm为单位。图中未注明单位的部分,均
以lm为的位
4.3 设计人未指定的材料及设备,施工单位选用时除应符合国家现行产品标准外
还应遵守:
4.3.1优先使用可重复利用、可循环使用、可再生使用的产品及材料;
4.3.2优先使用有先进节能、环保及改进室内空气质量技术的产品及材料:
4.3.3严禁使用国家命令淘汰的产品及材料;
4.3.4所有产品及材料需经设计方认可后方可进场安装:
4. 3. 4装饰装修所用的材料应该按设计要求进行防火、防霉和防蛀处理:
4.3.5现场配置的材料应按照设计要求或产品说明书制作;
43.6 本工程材料配置及工程做法,装修材料详见“室内装饰做法表”和“室内装
饰材料表”。
5 防火设计
5.1 设计原则及设计依据
5.1.1 本工程设计遵循原土建设计防火分区、防烟分区、人员疏散等各项防火措施
5.1.2 依据《建筑设计防火规范》GB50016-2014(2018年版)第5.5.17规定:本项目
室内任一点至最近疏散门或安全出口的直线距离不大于37.5米,(室内均设置自动喷水灭火系统)。
5.1.3 本工程执行现行国家标准《建筑内部装修设计防火规范》GB50222-2017中对装
修材料的燃烧性能等级要求的相关规定。
5.1.4 施工应符合《建筑内部装修防火施工及验收规范》GB50354-2005的规定。
6 消防排烟系统
6.1 餐厅区域内现有原物业消防排烟系统,本次设计维持现有系统,改造现有消
防排烟管道和排烟口。排烟系统的设计风量不应小于该系统计算风量的1.2倍,建筑空间净高小于等于6m的场所,其排烟量应按不小于60m3/(h.m3)计算,且取值不小于15000m3/h:
当系统负担具有相同净高场所时,对于建筑空间净高大于6m的场所,应按排烟量最大的一个防烟分区的排烟量计算;对于建筑空间净高为6m及以下的场所,应按任意两个相邻防烟分区的排烟量之和的最大值计算。
4.1 本工程所用材料、设备的品种、规格、性能符合国家现行产品标准的规定并符
合下列规范要求:
《建筑内部装修设计防火规范》GB50202-2017
(室内装饰装修材料人造板及其制品中甲酷释放限量》 GB18580-2001
《室内装饰装修材料溶剂木器涂料中有毒有害物质限量》 GB18581-2001
《室内装饰装修材料内墙涂料中有害物质限量》 GB18582-2001
(室内装饰装修材料胶粘剂中有害物质限量" GB18583-2008
(室内装饰装修材料术家具中有害物质限量》 GB18584-2001 《室内装饰装修材料壁纸中有害物质限量》GB18585-2001
(室内装饰装修材料聚氯乙烯券材地板中有害物质限量》GB18586-2001
《室内装饰装修材料地毯、地毯衬垫及地毯胶粘剂有害物质释放限量》GB18587-
《混凝土外加剂中释放氨的限量》 GB18588-2001 建筑材料放射性核素限量》GB6566-2010
5 防火设计
5.1 设计原则及设计依据
5. 1. 1本工程设计遵循原土建设计防火分区、防烟分区、人员疏散等各项防火措施
5.1.2依据《建筑设计防火规范》 GB50016-2014(2018年版)第5.5.17规定:本项目
室内任一点至最近疏散门或安全出口的直线距离不大于37.5米,(室内均设置自动喷水灭火系统)。
5.1.3 本工程执行现行国家标准《建筑内部装修设计防火规范》GB50222-2017中对装
修材料的燃烧性能等级要求的相关规定。
51.4 施工应符合《建筑内部装修防火施工及验收规范》 GB50354-2005的规定。





咏佐建设:专注建筑装饰,装修设计、施工,工程项目代建代办咨询服务;旗下资质:建筑 规划 消防 装修 照明 强弱电 电力 道路 桥梁 幕墙 钢结构 园林市政 绿化 电子智能化 机电 环保 防水腐保温隔热 等工程设计施工资质;◇监理服务。
服务中小企业:致力于让天下没有难做的工程。让天下没有难做的设计。本公司汇集数百名工程技术人员。数十位高级专家,建筑、结构、幕墙、电力、给排水、装饰、机电、自动化、暖通、造价、建筑装饰装修专业人才门类齐全,实力雄厚,10000+服务过的客户见证。遍布全国数百家分公司的布局,更好的服务社会各界!
服务热线:021-3389 7758 ;15505051172(微信同号)

